Introduction  Team  House  Story  Sponsors  Webcam ____________________________________________________________________________________________________________________________________________________________________________________________________________________________________________________________________________________________________________________________________________________________________________________________________________________ ____________________________________________________________________________________________________________________________________________________________________________________________________________________________________________________________________________________________________________________________________________________________________________________________________________________

design final draft

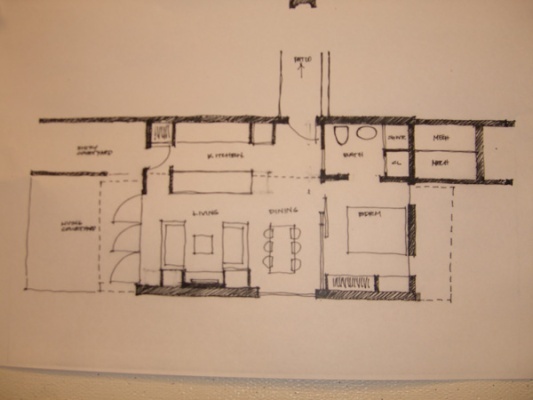
Our parallel investigations ultimately lead to a convergence, a fusion of ideas from each of the three designs.  With the aid of professional mentors and faculty, we evaluated the strengths and weaknesses of each house concept and created a final design.  The result is a home that displays simplicity of form, flexibility of the interior space, and a connection with nature (the landscape and the sky).  A biomechanical core incorporating the kitchen, the bath, a green wall, water tanks and nervous system forms the spine of the house.  This datum organizes the main living spaces as well, and suggests avenues for expansion and aggregation of the house to serve larger families and whole communities. 

 

 

 

 

 

 

 

 

login . contact