Introduction  Team  House  Story  Sponsors  Webcam ____________________________________________________________________________________________________________________________________________________________________________________________________________________________________________________________________________________________________________________________________________________________________________________________________________________ ____________________________________________________________________________________________________________________________________________________________________________________________________________________________________________________________________________________________________________________________________________________________________________________________________________________

design maturity

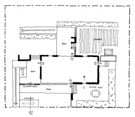
The first semester of design work by the architecture studio and the engineering teams produced a solid design concept for the LEAFHouse. As with all organisms, however, evolution still has a role to play. Over the next eight months, the design continued to mature.  Some of the formal aspects of the house were set aside, but the central principles and meanings embodied in the house were preserved and even enhanced.  The final result of this process will be displayed to the public on the National Mall from October 12 - 20, 2007.

 

 

 

 

 

 

 

 

login . contact